
Planning By Design Client Portal: How to Access Your Account
A simple guide on how to access your Planning By Design Client Portal. The Planning By Design Client Portal is your personal project hub, giving you full visibility over your …
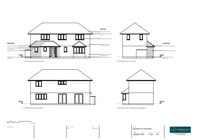
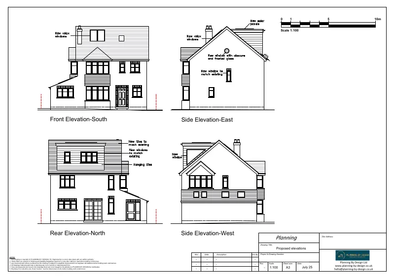
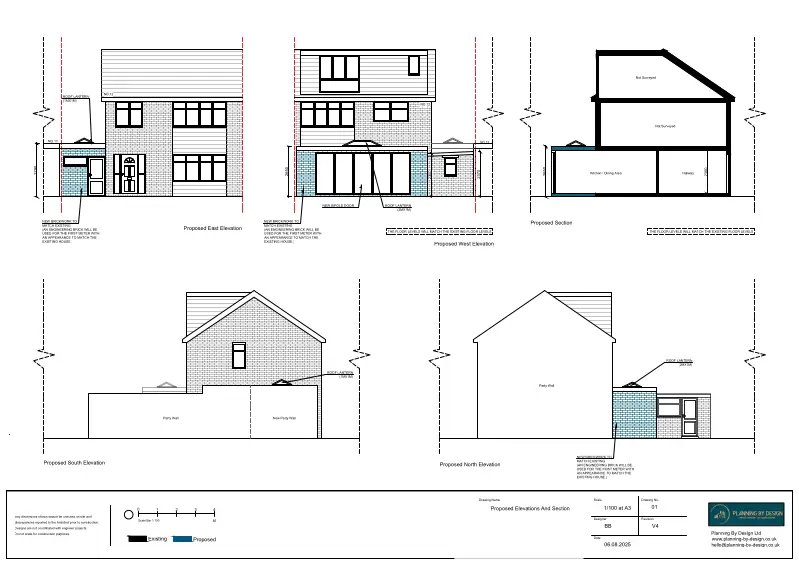
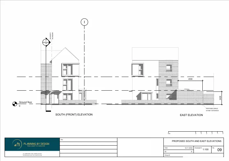
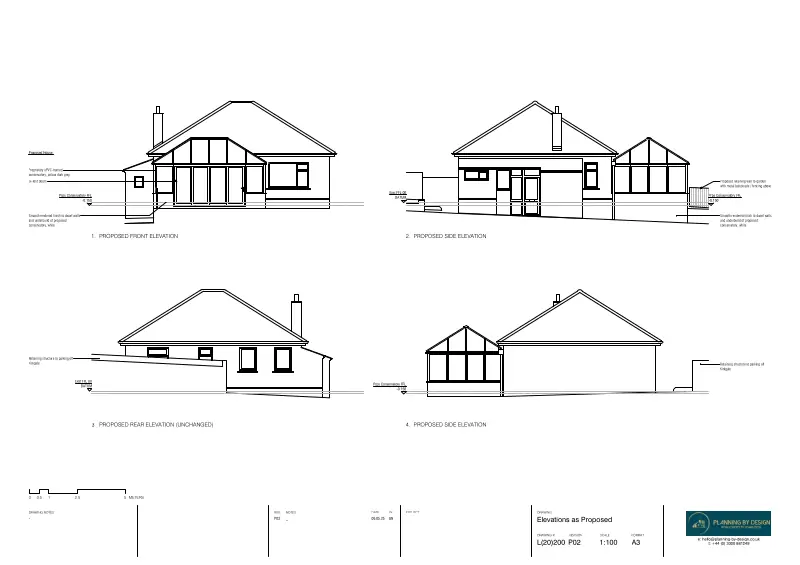
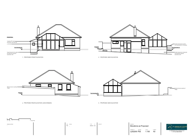
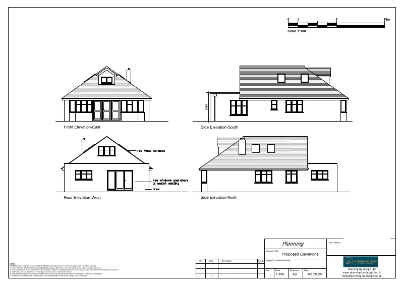
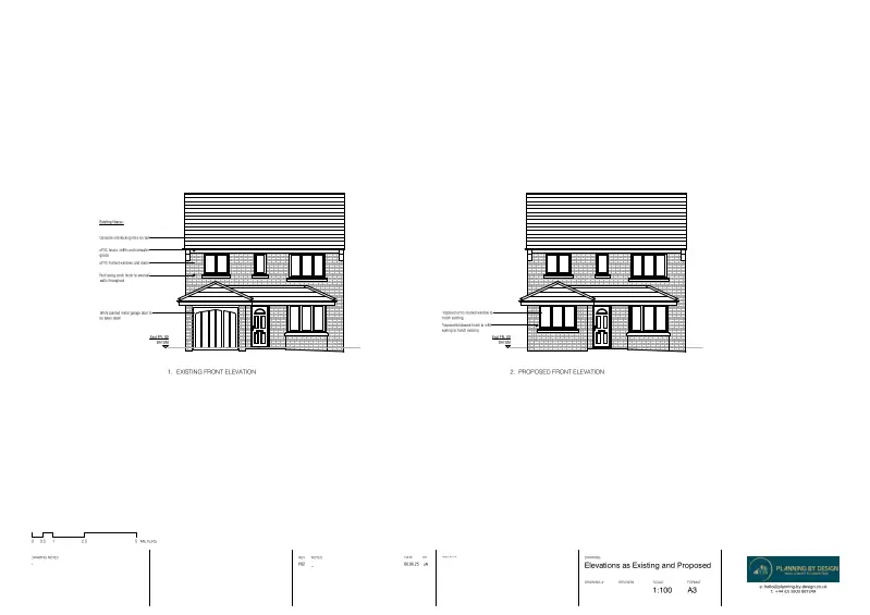
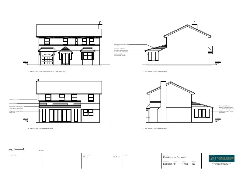
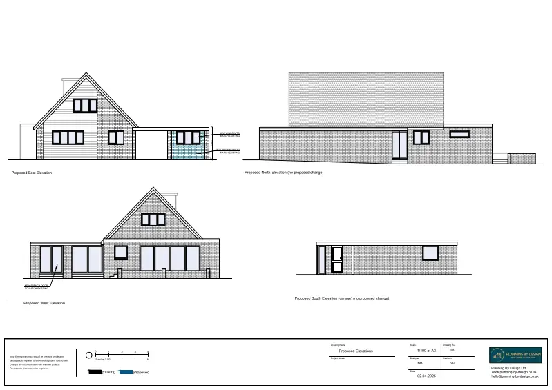
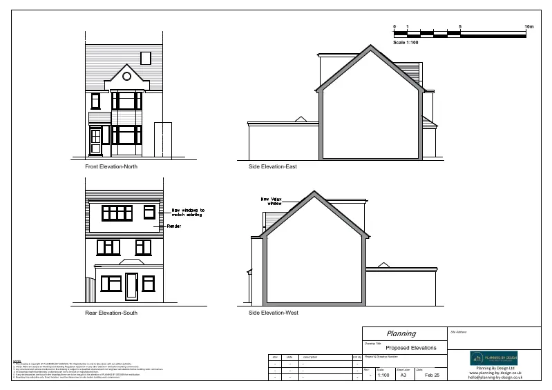
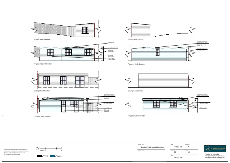
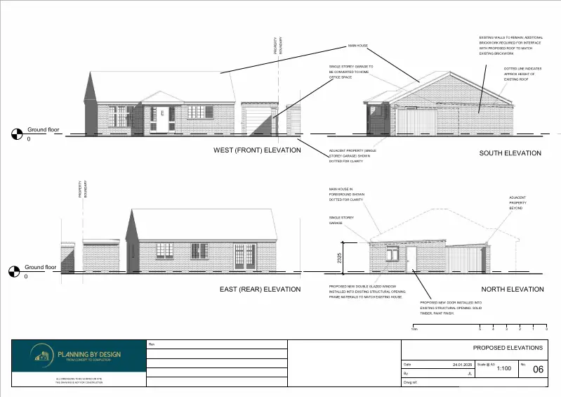
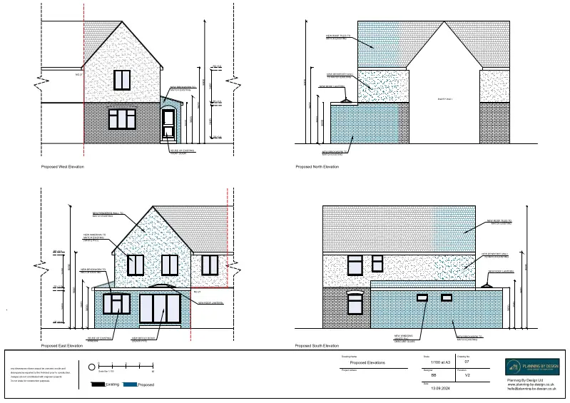
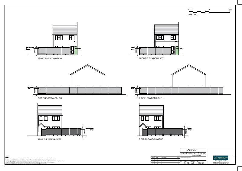
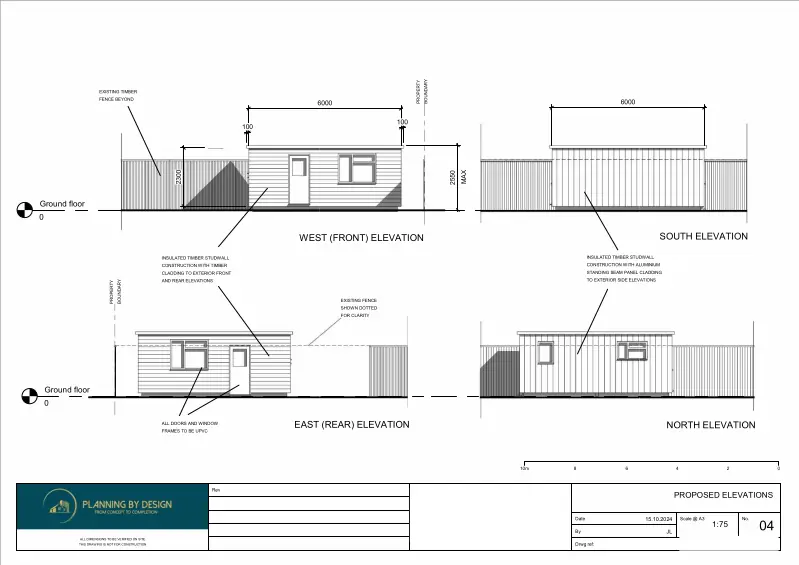
Our planning experts have helped secure 900+ planning approvals, with 900+ planning applications pending a decision soon! Click any of our design portfolio projects below to view the required architect drawings and planning statements for each planning application.
Our team of dedicated architectural design experts have put together a portfolio of projects we have helped to support that range from conservatory additions through to dropped kerbs and flat conversions.
We have a variety of partners who can also help to support your application. Take a look at our partnerships today to find out more about what they do and how they might be able to help.
Read our latest articles, tackling everything from planning permission and building regulations to home renovation advice.

A simple guide on how to access your Planning By Design Client Portal. The Planning By Design Client Portal is your personal project hub, giving you full visibility over your …

Sustainability is one of those topics that can quickly become vague. Lots of good intentions. Lots of buzzwords. Not always a lot of clarity. At Planning By Design, sustainability has …

[caption id="attachment_17940" align="alignnone" width="1536"] Securing planning permission in the Green Belt is widely regarded as one of the most complex challenges within the UK planning system. However, recent updates to …
We’re proud to be recognised for our expertise. Check out the latest on our Award-Winning Work.









































































































































































































































































































































