MENU

The client contacted Planning By Design regarding retrospective planning permission and Listed Building Consent for the relocation of a gas meter and…

The client contacted Planning By Design regarding proposed like for like replacement of rear French doors retaining timber and single glazing, overlaying…

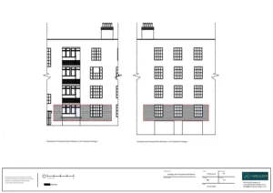
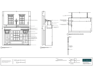
The client contacted Planning By Design regarding proposed external alterations to new shopfront and associated internal alterations to accommodate a new Italian restaurant….

The client contacted Planning By Design regarding proposed internal alterations in the flat, comprising removal of internal walls between the kitchen and reception…

The client contacted Planning By Design regarding the proposed change of use of two apartments (C3 Use) to a hostel (C1 Use).The building…

The client contacted Planning By Design regarding proposed internal and external alterations, advertisement signage, external lighting and non-illuminated signage, to facilitate the opening of…