MENU

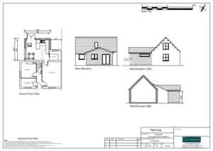
The client approached Planning By Design regarding retrospective planning permission for a first floor extension after an enforcement notice was issued. Following…

The client approached Planning By Design regarding a proposed change of use from Commercial Use Class E(c) to Educational Use F1(a). Following…

The client approached Planning By Design regarding a proposed rear single-storey extension. Following a planning appraisal with one of our chartered town planners…

The client contacted Planning By Design regarding retrospective planning permission for a fence after receiving a visit from an enforcement officer. Following…

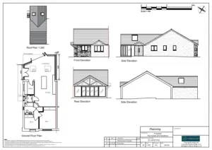
The client contacted Planning By Design regarding a proposed single storey extension and hip to gable loft conversion. Following a planning appraisal…

The client contacted Planning By Design regarding a proposed single storey rear extension. Following a planning appraisal with one of our chartered…