MENU

The client approached Planning By Design after receiving a planning enforcement for installing an advertising sign without the required planning permission. Following…

The client approached Planning By Design after receiving a planning enforcement for changing a private field into a dog field without the…

The client contacted Planning By Design after receiving an enforcement notice for a loft conversion which the client thought was permitted development….

The client approached Planning By Design regarding a retrospective conversion of a conservatory into a single storey extension after receiving an enforcement…

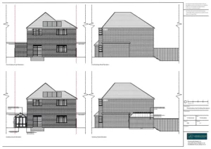
The client contacted Planning By Design very distressed having received an enforcement notice for multiple unlawful alterations to their house including windows,…

The client approached Planning By Design regarding retrospective planning permission for a garage conversion, internal alterations, and a pergola. Following a planning…