MENU

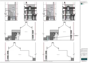
Following contact from an enforcement officer for making unlawful changes to a listed building, the client contacted Planning By Design regarding a…

The client contacted Planning By Design regarding a proposed new outbuilding to use as a home office. Following a planning appraisal with…

The client approached Planning By Design regarding a proposed garage conversion to create more incidental living space. Following a planning appraisal with…

The client contacted Planning By Design regarding a proposed of change of use from office to residential. Following a planning appraisal with…

The client approached Planning By Design regarding a proposed single storey rear extension. Following a planning appraisal with one of our chartered…

The client contacted Planning By Design regarding a proposed new build annex in their garden. Following a planning appraisal with one of…