MENU

The client contacted Planning By Design regarding retrospective planning permission for change of use of an incidental outbuilding (cabin) in the rear garden to…

The client approached Planning By Design regarding a proposed change of use from a vacant pub to car sale plot, alterations to windows…

The client approached Planning By Design regarding a proposed construction of a single-storey rear and part side extension to the existing terraced property….

The client contacted Planning By Design regarding the proposed external alterations to the rear of the property, comprising three elements: installation of a…

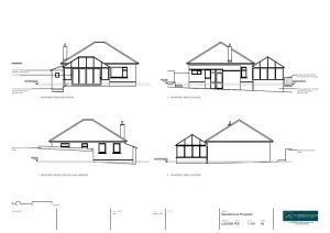
The client approached Planning By Design regarding a proposed replacement of existing front porch with a single-storey conservatory extension. Following a planning…

The client approached Planning By Design regarding a proposed partial change of use of the ground floor residential (Class 9) to form…