MENU

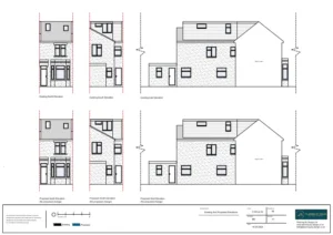
The client approached Planning By Design regarding a proposed extension to create a larger living space including the addition of a double storey extension…

The client approached Planning By Design regarding the proposed construction of a new garage/outbuilding in the front garden. Following a planning appraisal with one…

The client contacted Planning By Design regarding the proposed change of use from 4-bed dwellinghouse (C3) to a 4-bed house in multiple occupation HMO. Following…

The client contacted Planning By Design regarding the proposed change the use from a residential three-bedroom home to a children’s home for up to…

The client contacted Planning By Design regarding a proposed erection of a new dwelling. Following a planning appraisal with one of our…

The client approached Planning By Design after planning permission was refused for change of use from dwellinghouse (C3) to (C2) for a mother…