MENU

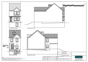
The client approached Planning By Design regarding the proposed demolition and rebuilding of an existing single-storey rear extension in a locally listed…

The client approached Planning By Design regarding a proposed new dropped kerb and associated adjustments to accommodate vehicular access to the property. …

The client contacted Planning By Design regarding retrospective planning permission for an extension to an existing gravel area on agricultural land, after…

The client approached Planning By Design regarding the proposed 8m x 4m outbuilding in rear garden to be used as a granny…

The client contacted Planning By Design to regularise the use of the land as storage (Class B8). Following a planning appraisal with…

The client approached Planning By Design regarding a propose demolition of a back door porch and erection of a single-storey rear infill…