MENU

The client approached Planning By Design regarding a proposed construction of a wooden shed to the front of the property. Following a planning appraisal…

The client approached Planning By Design regarding a proposed garage conversion for use ancillary to host dwelling. Following a planning appraisal with one…

The client contacted Planning By Design regarding a proposed change of use from dwellinghouse (Class C3) to house in multiple occupation (Class C4)….

The client contacted Planning By Design regarding retrospective planning permission for retention of a boundary fence. Following a planning appraisal with one…

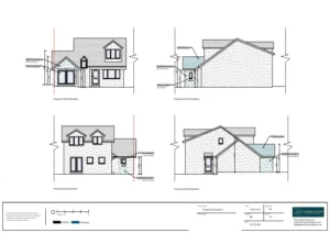
The client approached Planning By Design regarding a proposed single-storey front extension and conversion of the garage. Following a planning appraisal with…

The client contacted Planning By Design regarding the proposed subdivision of the existing property into one flat and a six-bedroom house. Following…