MENU

The client contacted Planning By Design regarding a proposed new outbuilding, within the northern section of the garden, to be used as…

The client contacted Planning By Design regarding a proposed erection of a metal fence boundary to front and side, electric gates to…

The client approached Planning By Design regarding the proposed erection of a single-storey outbuilding to be used as an annex and office space…

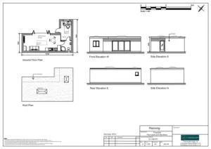
The client approached Planning By Design regarding proposed erection of a wooden clad garden room with an area for a hot tub…

The client approached Planning By Design regarding a proposed single storey rear extension, to replace the existing conservatory and to extend the…

The client approached Planning By Design regarding a proposed creation of a new access into the property and the construction of a…