MENU

The client approached Planning By Design regarding the proposed erection of replacement outbuilding to be used as a granny annex. Following a…

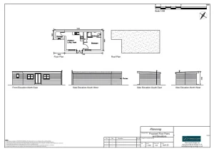
The client contacted Planning By Design regarding retrospective permission for an addition extension to the outbuilding and proposal to change the outbuilding…

The client approached Planning By Design regarding a proposed first-floor side extension above the existing garage. Following a planning appraisal with one…

The client approached Planning By Design regarding a proposed change of use and enclosure of open space land into private residential garden…

The client approached Planning By Design regarding a proposed replacement and extension of the existing porch. Following a planning appraisal with one of…

The client contacted Planning By Design regarding a proposed erection of a rear balcony with steps down to the garden and privacy screens….