MENU

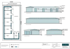
The client approached Planning By Design regarding proposed erection of a four stable block and garage. Following a planning appraisal with one…

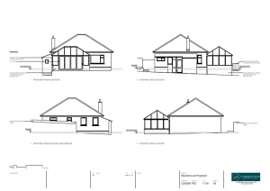
The client approached Planning By Design regarding a proposed erection of a single-storey rear extension to form an enlarged open-plan kitchen and…

The client approached Planning By Design regarding a proposed conversion of the existing domestic garage/ carport in the dwelling’s curtilage. Following a…

The client contacted Planning By Design regarding a retrospective planning permission for the installation of a static caravan for holiday let purposes…

The client approached Planning By Design regarding a proposed conversion of the garage to an annexe for use, in part, as short term…

The client contacted Planning By Design regarding a proposed side extension. Following a planning appraisal with one of our chartered town planners…